Інформація

  • ID оголошення 1970730
  • Тип дом
  • ОпераціяПродажа
  • Ділянка 6 соток
  • Площа 80/—/—
 

Продам, Будинок, Гнедин, Киевская обл., Бориспольский район

80 000 $

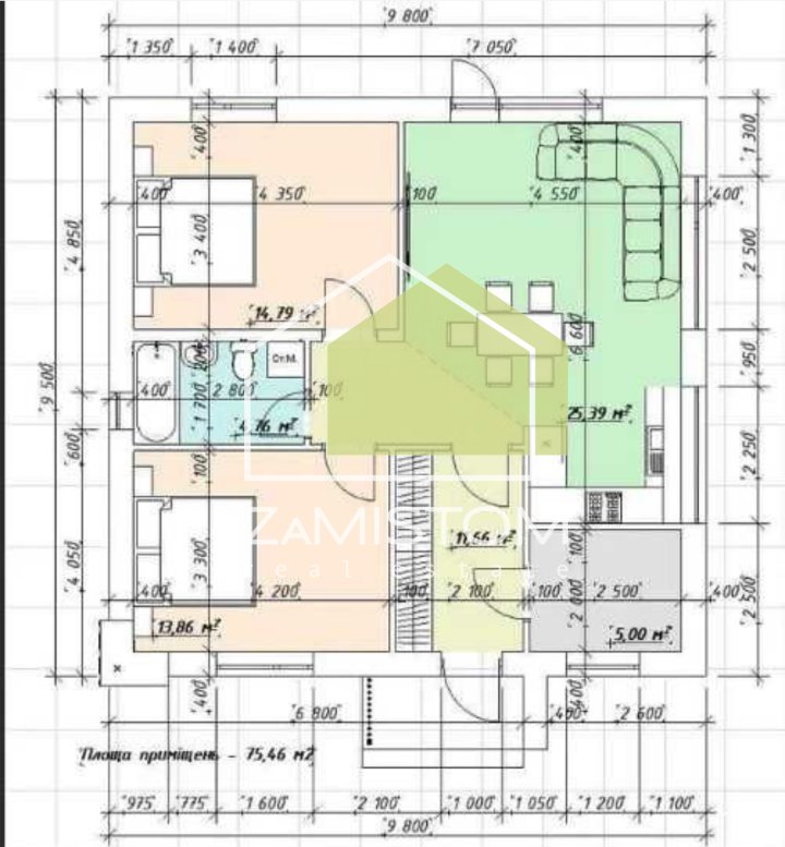
Продаж компактного будинку 79 м2 в селі Гнідин. Побудований з газоблоку, утеплений 100 мм мінеральною ватою, підключено 12 кВт електроенергії, свердловина 36 метрів, каналізація 9 кубів, покрівля утеплена, стіни,- машинна штукатурка. Зручне і продумане планування. Ділянка 5,6 соток огороджена парканом, залита відмостка та парко місце. Вартість обʼєкту 80000$  Найбільший вибір будинків і ділянок. Номер оголошення №1074. Дивіться інші оголошення автора. Більше об’єктів нерухомості на нашому сайті https://zamistom.com/


Киевская обл. | Бориспольский район | Гнедин


Інформація про продавця

ім’я, прізвище Євген
телефон +38 (096) 666-55-40
e-mail 0507808853@ukr.net
агенція Агентство нерухомості ZaMistom real estate
сайт продавця https://zamistom.com/
тип пропозиції от посредника

Подібні об’єкти

дом

Продам, будинок 3к

Киевская обл, Гнедин

Продажа

145 000 $

дом

Продам, будинок 5к

Киевская обл, Гнедин

Продажа

172 000 $

дом

Продам, будинок 5к

Киевская обл, Гнедин

Продажа

175 000 $

Повідомте продавцеві, що ви знайшли це оголошення на сайті zhitlo.in.ua

©2024 Житло в Україні