Інформація

  • ID оголошення 1974224
  • Тип дом
  • ОпераціяПродажа
  • Кімнат 4
  • Ділянка 6 соток
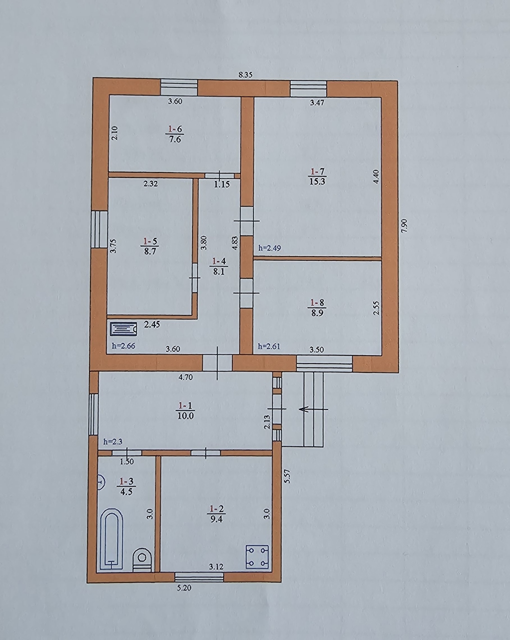
  • Площа 72/40/10
 

Продам, Будинок 4к, Днепр , Самарский район

54 000 $

Продам капитальный дом 1991 г.п. на ж/м Игрень, Самарский район/Днепр. • фундамент - ж/б • стены - кирпич + утепление (очень теплый) • высокий капитальный чердак • крыша - шифер • вода централизованная • отопление - газовый котел. Площадь дома 72м2, спланирован как просторная кухня, зал, 3 раздельные спальни, санузел, коридор. Хорошее жилое состояние после ремонта. Поменяны коммуникации, МП окна, пол - ламинат, линолеум, встроенная кухня, косметика. Остается мебель и техника. Ровный, ухоженный участок 6,25 соток, огорожен по периметру. На участке гараж с ямой, летняя кухня с подвалом, мастерская, уличный с/у, сад, огород. В шаговой доступности 2 школы (127 и 87), детсад, АТБ, Ева, Велике Пузо, разные магазины, рынок, банк, сквер, остановки. До центра города 15-20 минут езды.


Днепр | Самарский район | Живописная


Інформація про продавця

ім’я, прізвище Ирина
телефон +38 (098) 177-76-80
телефон (додатково) +38 (093) 033-25-32
e-mail iboichak@gmail.com
агенція Status Dnepr
сайт продавця http://boichak.com.ua
тип пропозиції от посредника

Подібні об’єкти

дом

Продам, будинок 6к

Днепр

Продажа

110 000 $

дом

Продам, будинок 3к

Днепр

Продажа

47 000 $

дом

Продам, будинок 3к

Днепр

Продажа

259 000 $

Повідомте продавцеві, що ви знайшли це оголошення на сайті zhitlo.in.ua

©2024 Житло в Україні