Інформація

  • ID оголошення 1974477
  • Тип дом
  • ОпераціяПродажа
  • Кімнат 3
  • Ділянка 4 соток
  • Площа 64/40/18
 

Продам, Будинок 3к, Днепр , Шевченковский район

28 000 $

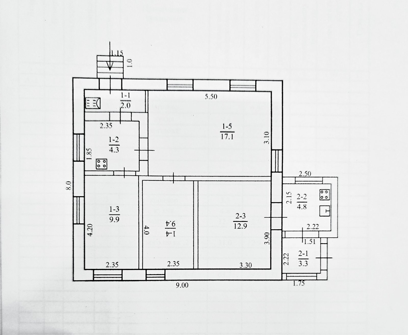
Продам будинок на тихій вулиці в Центрі, р-н Січових Стрільців, вул.Леонтовича. Загальна площа будинку 64 кв/м + 4 сотні землі. Глиняний будинок обкладений цеглою. Будинок має два входи. Дві кухні та чотири кімнати. Є всі комунікації – електрика, газ, централізована вода. Лічильники на все є. Сан/вузол у дворі. На ділянці є госп/будівлі: гараж, літня кухня, сарай. Є невеликий сад із фруктовими деревами. У будинку ніхто не прописаний. Поруч знаходиться вул. Олександра Конінського, Саксаганського, Січових Стрільців, Грушевського, Святослава Хороброго, пр. Богдана Хмельницького, Олександра Поля, Гагаріна, Дмитра Яворницького, Запорізьке шосе. Можна використовувати як дача у центрі міста. Телефонуйте, подивимося, домовимось.


Днепр | Шевченковский район | Дніпро, вул.Леонтовича


Інформація про продавця

ім’я, прізвище Олена Третьякова
телефон +38 (067) 910-97-70
телефон (додатково) +38 (095) 422-41-45
e-mail serdolik700@i.ua
агенція PROSTO Нерухомість
тип пропозиції от посредника

Подібні об’єкти

дом

Продам, будинок 6к

Днепр

Продажа

500 000 $

дом

Продам, будинок 5к

Днепр

Продажа

41 500 $

дом

Продам, будинок 7к

Днепр

Продажа

210 000 $

Повідомте продавцеві, що ви знайшли це оголошення на сайті zhitlo.in.ua

©2024 Житло в Україні